Rénovation d’un appartement T2 sous les toits de 30 m² à Paris 17e
PAR QUI ?
Mélanie, architecte d’intérieur HOMER® – Yvelines
OÙ ?
Paris – 17ᵉ arrondissement
POUR QUI ?
Famille intergénérationnelle (grand-mère et petits-enfants)
OBJECTIFS
Rénovation complète d’un petit T2 sous les toits
MOMENT DE VIE
Transmission familiale
STYLE
Naturel, sobre, préservation du charme de l’ancien
SUPERFICIE
30 m²
BUDGET
50 000 €
Vous avez un projet pour votre intérieur ? Faites appel à un HOMER® un architecte d’intérieur spécialiste de l’optimisation de l’espace de l’habitat !
Vous rêvez de devenir votre propre architecte d’intérieur ? Rejoignez l’Atelier HOME Découverte et concrétisez votre projet !
Dans un immeuble haussmannien du 17ᵉ arrondissement de Paris, cet appartement T2 de 32 m² situé au 6ᵉ étage servait autrefois de chambre de bonne. Conservé par sa propriétaire de 90 ans pour accueillir sa famille, ce lieu chargé d’histoire méritait une rénovation complète.
C’est Mélanie, architecte d’intérieur HOMER® dans les Yvelines, qui a accompagné cette famille dans la rénovation complète du lieu, en s’appuyant sur les choix esthétiques et pratiques des enfants de la propriétaire.
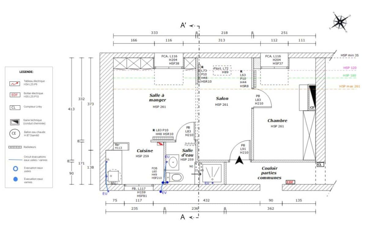
Rénover un T2 de 30m2 pour accueillir une nouvelle génération
Occupé aujourd’hui par l’un de ses petits-fils, ce deux-pièces avait besoin d’un vrai coup de frais. L’objectif : créer un espace fonctionnel, chaleureux et optimisé, sans dénaturer le charme des lieux. La demande était multiple : améliorer l’isolation, réorganiser les fonctions, revoir l’électricité, tout en respectant les volumes existants.
L’appartement de 32 m² présentait de nombreuses contraintes : accès par un escalier de service, radiateurs à déplacer, tableau électrique à modifier, cloisons à revoir, et un budget initial rapidement dépassé par l’ampleur des travaux.
Mais les besoins étaient clairs :
- Une vraie entrée, avec rangements pour manteaux, chaussures et produits ménagers.
- Une cuisine ouverte, pratique, avec un plan de travail confortable et la possibilité d’accueillir un coin snack.
- Un espace repas, pour 4 à 6 personnes.
- Un salon accueillant, autour de la cheminée, avec un canapé convertible, des rangements, un coin bureau et un accès au balcon.
- Une chambre séparée, avec lit double et rangements.
- Une salle d’eau optimisée, avec douche, WC intégrés, lave-linge, et éléments de confort.
Le défi : intégrer toutes ces fonctions dans une surface restreinte, sous les toits, sans sacrifier la circulation ni l’identité du lieu.
Les solutions concrètes pour optimiser un petit deux-pièces sous les toits de 30m2
Après avoir étudié les 3 propositions d’aménagement de Mélanie, la famille a opté pour une version hybride d’une des solutions, offrant une circulation fluide et des travaux limités, tout en conservant la cheminée dans la pièce à vivre.
Une entrée repensée pour une meilleure circulation
Une petite entrée a été créée, intégrant deux placards toute hauteur, un banc avec rangement pour les chaussures et le nouveau tableau électrique dissimulé. L’espace bureau, réduit à l’essentiel, permet de libérer l’accès à la pièce de vie.
Une cuisine compacte et bien pensée
La cuisine accueille un évier large, des plaques à induction, un four, des rangements hauts et bas, et un coin snack pour deux personnes. Le plan de travail, en stratifié, permet de poser grille-pain, bouilloire et machine à café.
Un salon autour de la cheminée
L’espace salon-séjour a été conçu autour de la cheminée d’origine. Il comprend un canapé convertible, une petite bibliothèque, et un accès direct au balcon. La lumière naturelle y est largement valorisée.
Une chambre sobre et fonctionnelle
La chambre séparée accueille un lit double (140×190) et des rangements sur mesure. Le mobilier a été choisi pour s’intégrer discrètement aux volumes.
Une salle d’eau optimisée jusqu’au moindre détail
Les toilettes sont intégrées dans la salle d’eau, mais visuellement séparées. La pièce intègre une douche, un lave-linge frontal, un meuble vasque, un radiateur sèche-serviette et du mobilier sur mesure. Une porte coulissante a remplacé la porte battante pour libérer de l’espace.
💡 Cette rénovation d’un T2 de 30m2 montre qu’avec une réflexion ciblée et une bonne compréhension des usages, même un petit appartement sous les toits peut gagner en confort, en fonctionnalité et en chaleur. Sans bouleverser la structure d’origine, Mélanie a su optimiser chaque mètre carré, tout en valorisant les éléments existants : cheminée, volumes mansardés, matériaux anciens… Un lieu qui retrouve une nouvelle vie, pensé pour plusieurs générations.
AVANT
AVANT
APRÈS
© Visuels Mélanie, architecte d’intérieur HOMER®
Mélanie
Architecte d’intérieur HOMER® dans les Yvelines
Après une première vie professionnelle comme sage-femme, Mélanie s’est formée à l’architecture d’intérieur et à l’optimisation d’espace au sein de l’École HOME. Mélanie intervient aujourd’hui principalement sur des projets de rénovation dans l’ancien, avec une sensibilité marquée pour les lieux de vie à réinventer. Son approche allie sensibilité décorative, adaptabilité et grande rigueur de conception. Sa marque de fabrique : sa capacité à associer charme de l’ancien, solutions contemporaines et maîtrise des petits espaces.

