Rénovation d’une maison de ville de 180 m² à Cherbourg
PAR QUI ?
Vanessa, architecte d’intérieur HOMER® dans le Cotentin
OÙ ?
Cherbourg-en-Cotentin – Manche (50)
POUR QUI ?
Une famille de 4 personnes
OBJECTIFS
Rénover et optimiser une maison de ville familiale
MOMENT DE VIE
Installation dans un nouveau logement
STYLE
Scandinave, lumineux, chaleureux
SUPERFICIE
180 m²
BUDGET
80 000 €
Vous avez un projet pour votre intérieur ? Faites appel à un HOMER® un architecte d’intérieur spécialiste de l’optimisation de l’espace de l’habitat !
Vous rêvez de devenir votre propre architecte d’intérieur ? Rejoignez l’Atelier HOME Découverte et concrétisez votre projet !
Située à Cherbourg-en-Cotentin, cette maison de ville de 180 m² abrite une famille de quatre personnes. Tout juste installés, les propriétaires souhaitaient transformer ce nouveau lieu de vie à leur image. Leur demande initiale : optimiser les circulations, gagner en fonctionnalité et harmoniser l’ensemble de la décoration.
Pour répondre à ce besoin global, Vanessa, architecte d’intérieur HOMER® dans le Cotentin, a proposé un accompagnement complet : de l’agencement de l’entrée à la création d’un dressing sous combles, en passant par la refonte de la buanderie, l’aménagement des chambres d’adolescents, et la rénovation de la salle de bain parentale.
Aménager et rénover une maison de ville pour toute la famille
Cette maison mitoyenne, répartie sur trois niveaux, présentait plusieurs contraintes typiques des maisons de ville anciennes : circulations peu fluides, absence d’entrée clairement définie, buanderie difficilement accessible, salle d’eau parentale exiguë, et peu de rangements adaptés.
Le défi : repenser chaque espace pour en révéler tout le potentiel, sans modifier la structure de la maison. Le tout, en respectant la liste des besoins exprimés par les clients :
- Créer une vraie entrée fonctionnelle, avec placards et assise.
- Optimiser la buanderie et les WC, peu pratiques et mal dimensionnés.
- Réaménager les chambres des enfants, avec coin bureau, espace jeux et rangements.
- Concevoir un espace salon TV isolé, propice à la détente en famille.
- Réorganiser le 2e étage en suite parentale, avec dressing sous pente et salle d’eau sécurisée.
- Apporter une cohérence décorative à l’ensemble de la maison.
Les solutions concrètes pour optimiser cette maison de ville de 180 m²
Après présentation des trois avant-projets de Vanessa, les propriétaires ont choisi une version sur mesure, issue d’un mix des différentes propositions. Un plan de maison avec 180 m² vraiment optimisé et adapté à leur quotidien, en tirant parti des volumes existants et en structurant clairement les fonctions sur les trois niveaux.
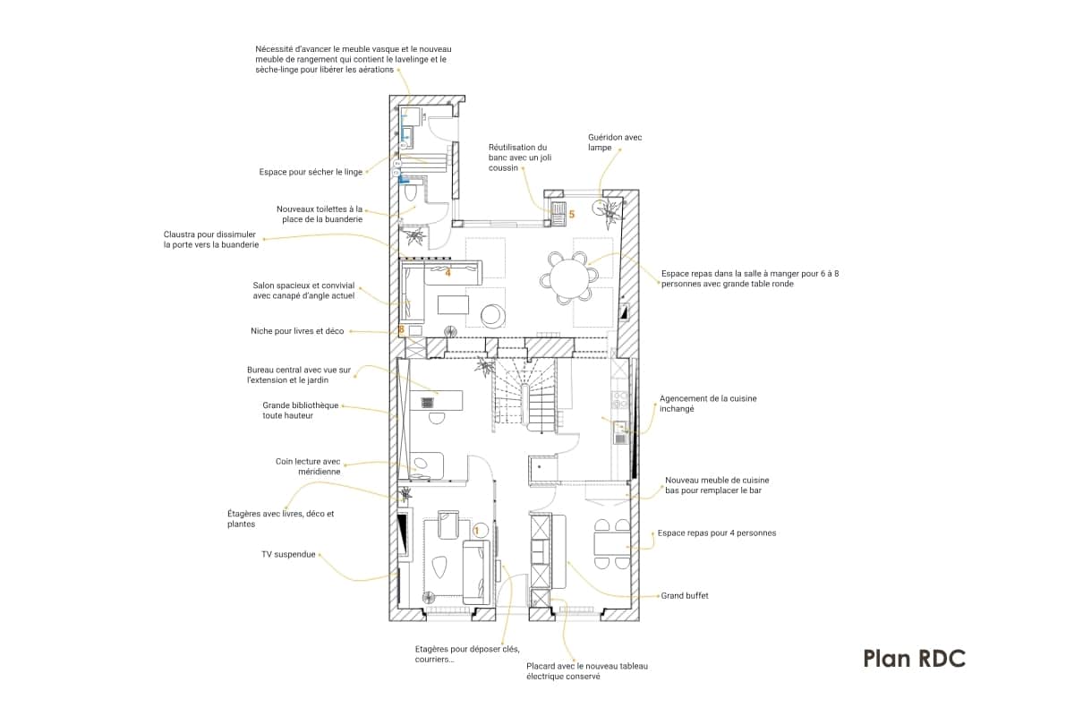
Un rez-de-chaussée pensé pour la vie quotidienne
L’entrée a été créée en rognant sur la cuisine pour y intégrer des rangements, une assise et une tablette murale. La buanderie et les WC, auparavant peu pratiques, ont été séparés et optimisés avec des meubles sur mesure. Côté pièce de vie, les volumes ont été restructurés sans cloisonner, en conservant le mobilier existant et en ajoutant un claustra pour séparer les usages.
Un mur bibliothèque toute hauteur a été aménagé dans le prolongement de la pièce. Il intègre un coin lecture avec méridienne et un bureau ouvert sur le salon et le jardin, légèrement décalé pour offrir une vraie perspective vers l’extérieur.
✔ Entrée fonctionnelle avec rangements.
✔ Buanderie optimisée, WC repositionnés.
✔ Salon et coin TV réorganisés sans cloisonner.
✔ Bibliothèque murale et bureau avec vue sur jardin.
Un premier étage pour les enfants
Les chambres des adolescents ont été adaptées à leurs usages : zones nuit, bureau, rangements et loisirs. Une chambre supplémentaire a été transformée en espace polyvalent, bureau au quotidien et chambre d’amis à l’occasion, avec un aménagement pensé pour ces deux fonctions.
✔ Chambres d’ados personnalisées et évolutives.
✔ Pièce bureau/chambre d’appoint.
✔ Rangements intégrés pour chaque usage.
Un dernier niveau dédié à la suite parentale
L’étage sous combles accueille désormais une suite parentale complète : dressing toute hauteur sous pente, salle d’eau sécurisée après déplacement de la chaudière, et pièce polyvalente pour la musique, le yoga ou les invités.
✔ Dressing sous pente sur mesure.
✔ Salle d’eau rénovée et fonctionnelle.
✔ Espace polyvalent pour activités ou couchage d’appoint.
💡 Ce projet montre comment une maison de ville récemment investie peut se transformer en véritable cocon familial, lorsqu’elle est pensée autour des usages du quotidien. En structurant les circulations, en intégrant des rangements adaptés et en travaillant chaque pièce dans le détail, Vanessa a su réconcilier les volumes existants avec le rythme de vie de tous les habitants et co-habitants.
AVANT
APRÈS
© Visuels Vanessa, architecte d’intérieur HOMER®
Vanessa
Architecte d’intérieur HOMER® dans le Cotentin
Ancienne infirmière, Vanessa s’est reconvertie après 18 ans de carrière, guidée par une envie profonde : améliorer le quotidien des familles à travers des espaces mieux pensés. Formée à l’École HOME, elle s’appuie sur une approche concrète de l’architecture d’intérieur, centrée sur l’usage et l’optimisation de l’espace. Spécialisée dans la rénovation de maisons de ville et les projets familiaux, elle conçoit des intérieurs à la fois fonctionnels, sobres et adaptés à chaque rythme de vie. Attentive aux besoins réels de ses clients, elle imagine des solutions claires, efficaces, et toujours en cohérence avec les contraintes du lieu.

